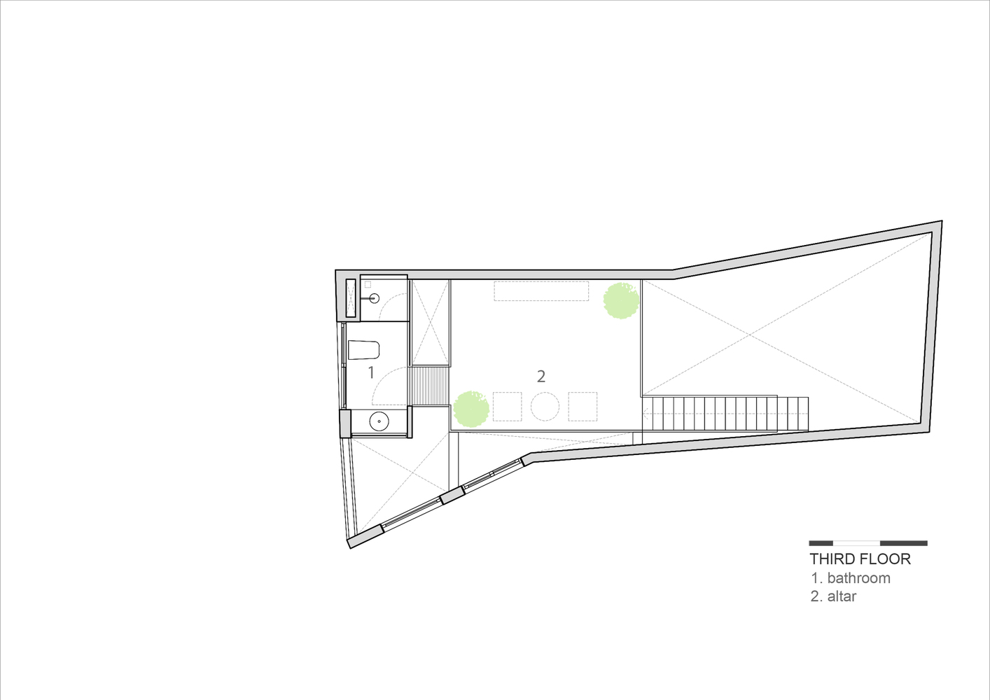
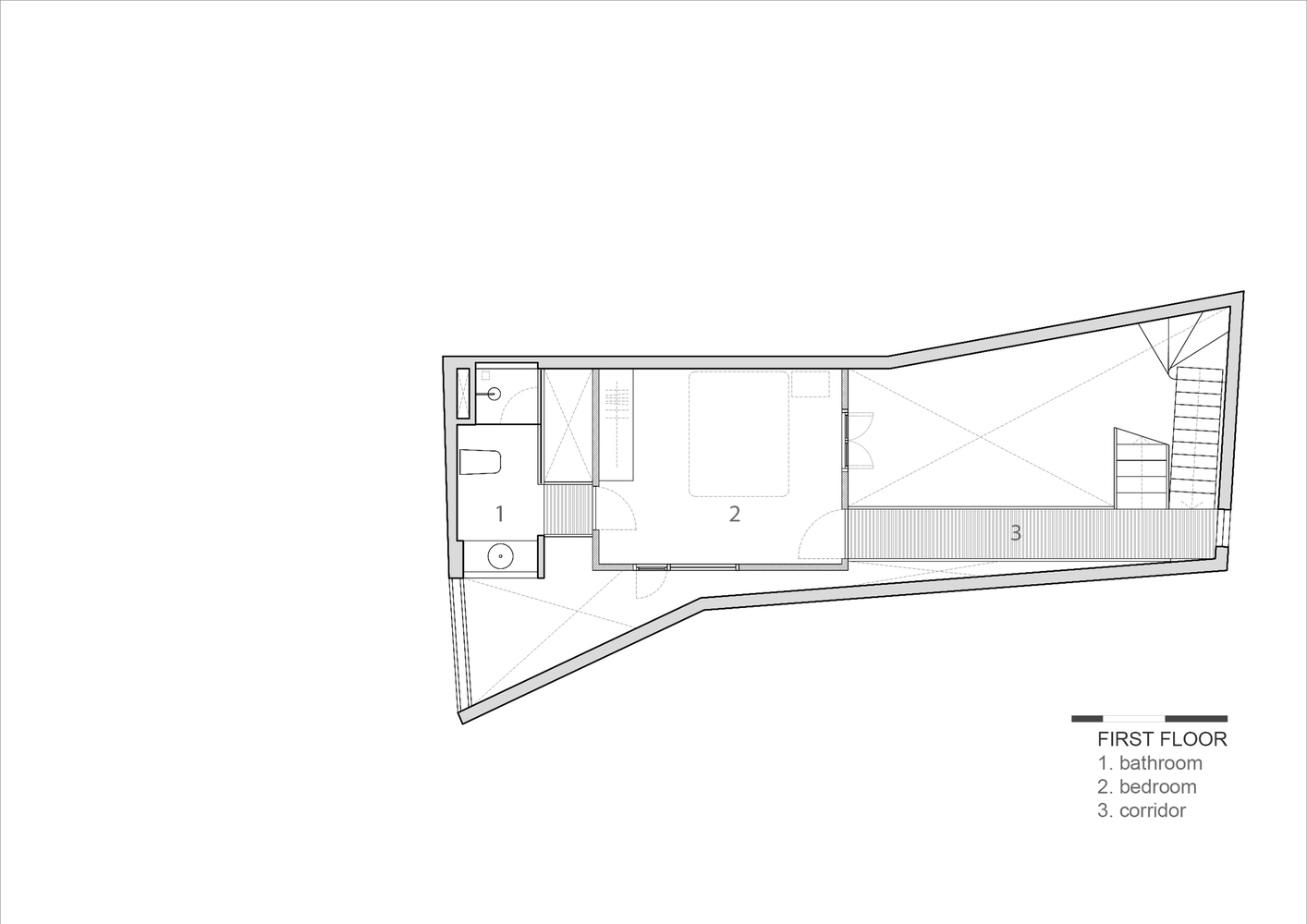
Vợ chồng gia chủ đều là Phật tử, mong muốn có một nơi yên bình, thanh tịnh và hoàn toàn thoát tục khỏi những ồn ào, xô bồ nơi thị thành. Căn nhà 78m2 không chỉ đơn giản là nhà, nơi đây còn giống như một thiền viện thực thụ.

















Nguồn: Bất Động Sản

















Nguồn: Bất Động Sản